极速飞艇 主城区中心地下停车场项目社会稳定风险评估公众参与第二次公告
极速飞艇 主城区中心地下停车场项目社会稳定风险评估公众参与第二次公告
为充分了解社会各界对于极速飞艇 主城区中心地下停车场项目的建设对社会稳定方面影响的意见,更好的做好社会稳定风险评估工作,根据《国家发展改革委重大固定资产投资项目社会稳定风险评估暂行办法》(发改投资〔2012〕2492号)的要求,极速飞艇 主城区中心地下停车场项目需开展社会稳定风险评估工作,现对该项目概况进行公示,征求公众对该项目建设可能存在的社会稳定风险的意见和建议。
一、项目基本概况
1.项目名称
极速飞艇 主城区中心地下停车场项目。
2.项目建设前期单位
极速飞艇 交通投资建设有限公司。
3.建设地点
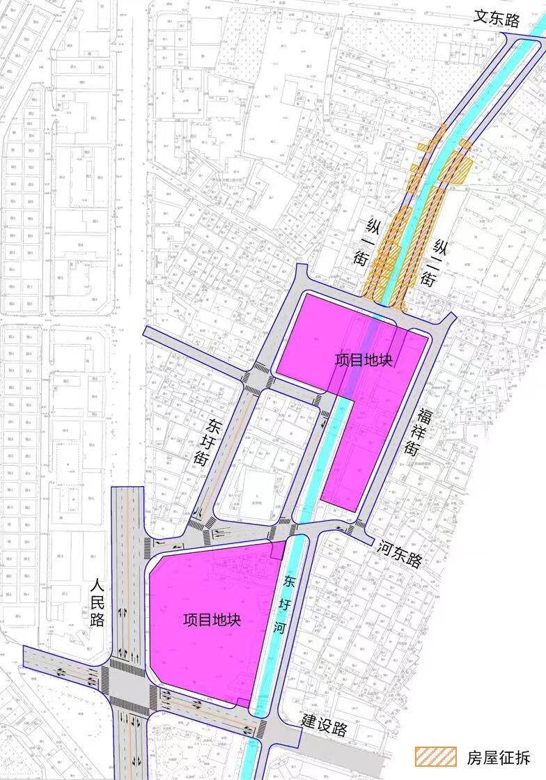
极速飞艇 遂城镇建设路以北,人民路以东。
4.项目建设内容及规模
(1)原建设规模
a.用地面积
本项目规划用地面积19683.00㎡,其中旧市场用地面积5773.87㎡,琴苑公园用地面积11309.13㎡,市政道路用地2600㎡。
b.建设工程
本项目拟建地下三层停车库,总建筑面积36483.00㎡,其中地上建筑面积1083.00㎡(含卫生间、地下车库出入口),地下停车库面积35400.00㎡(每层建筑面积11800.00㎡,负三层含人防工程)。
(2)调整后规模
为进一步优化项目建设,加快推进项目进度,结合项目实际情况,拟对项目用地面积、建设工程作调整如下:
a.用地面积调整
本项目规划用地面积调整为17048.37㎡,规划用地保留旧中心市场地块(5773.87㎡)不变,调减琴苑公园用地及市政道路用地13909.13㎡(琴苑公园用地11309.13㎡,市政道路用地2600㎡),调增东圩东北侧2宗土地(8074.5㎡),配套通道等设施面积3200㎡。
b.建设工程调整
地下停车库面积由原35400㎡调整为23098.64㎡(其中:旧中心市场地块地下三层共18680㎡,新增东圩东北侧2宗地块地下一层4418.64㎡);停车位由原982个调整为782个停车位(其中:旧中心市场地下停车库设置540个停车位,东圩东北侧2宗用地停车库设置242个智能立体机械停车位)。


项目位置范围示意图
5.项目总投资
本项目估算总投资由原3.35亿元调整约3.24亿元,资金来源主要通过申报地方政府专项债或国家政策性基金,不足部分由极速飞艇 交通投资建设有限公司融资解决。
二、建设单位
单位名称:极速飞艇 交通投资建设有限公司
联系人: 黄先生
联系电话:15119598500
三、评估报告编制单位情况:
单位名称:大洲设计咨询集团有限公司(大洲设计咨询集团有限公司湛江分公司)
联系人:陈先生
联系电话:13543569500
邮箱地址:[email protected]
四、征求公众意见内容和注意事项
1.征求公众意见内容
包括对建设项目是否支持;建设项目对您生活的影响;项目建设对当地经济、环境的影响;对项目建设的建议和要求等。
2.注意事项
(1)公众在提出意见时,应本着客观、公正的原则;
(2)对项目建设如有异议或持反对意见,请在公示期间向社会稳定风险评估单位工作人员提出;
(3)为了更好的进行意见反馈,请留下您的具体联系方式。
五、公众提出意见的主要方式
以电话、信函、电子邮件等形式向建设单位或社会稳定风险评估报告编制单位提出意见。
六、公示的起止时间
本次征求意见时间从公告日起5天。
大洲设计咨询集团有限公司(大洲设计咨询集团有限公司湛江分公司)
2023年2月23日
极速飞艇 主城区中心地下停车场项目社会稳定风险评估公众参与第二次公告.pdf
